Ackman Residence
Demo Plan
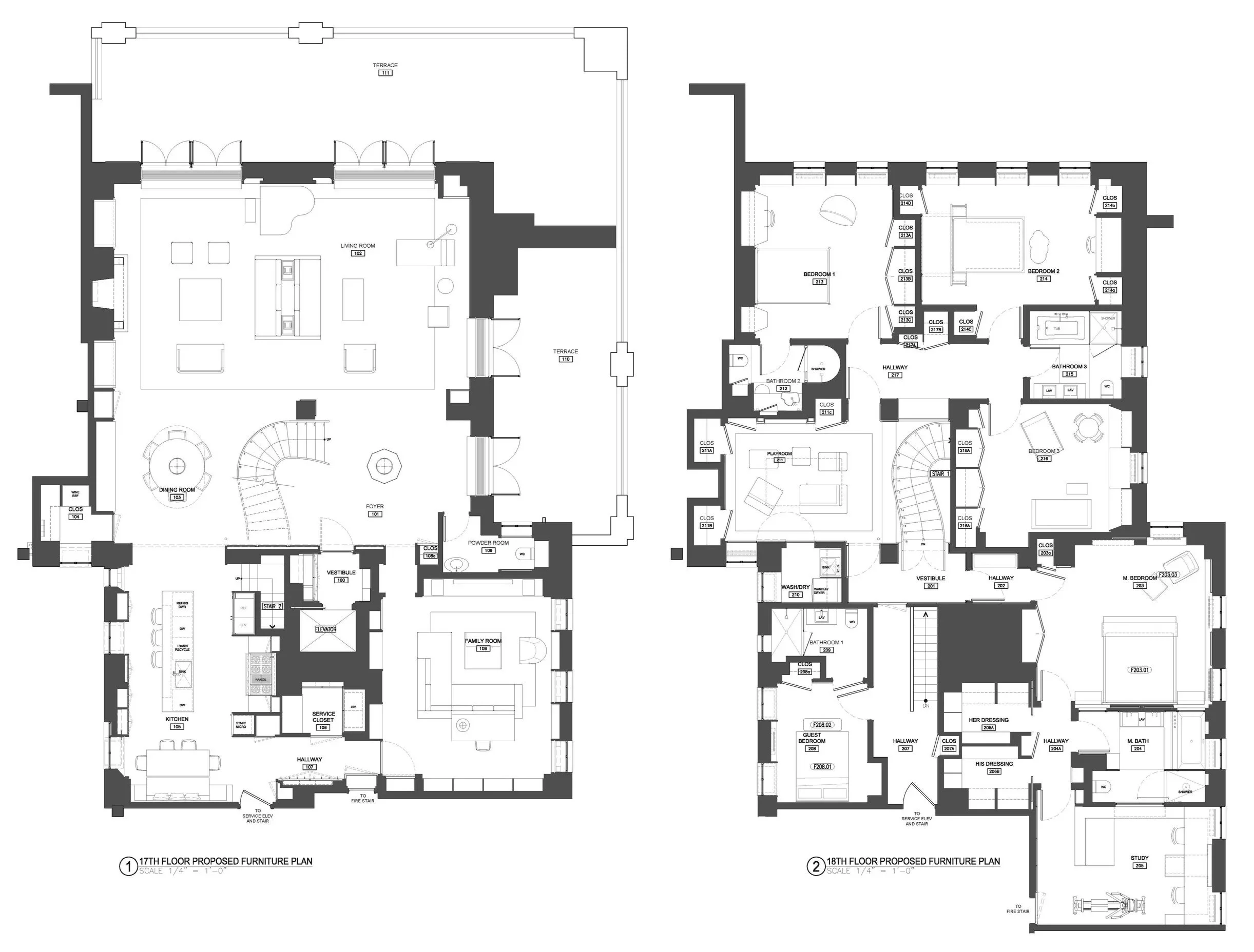
Furniture Plan
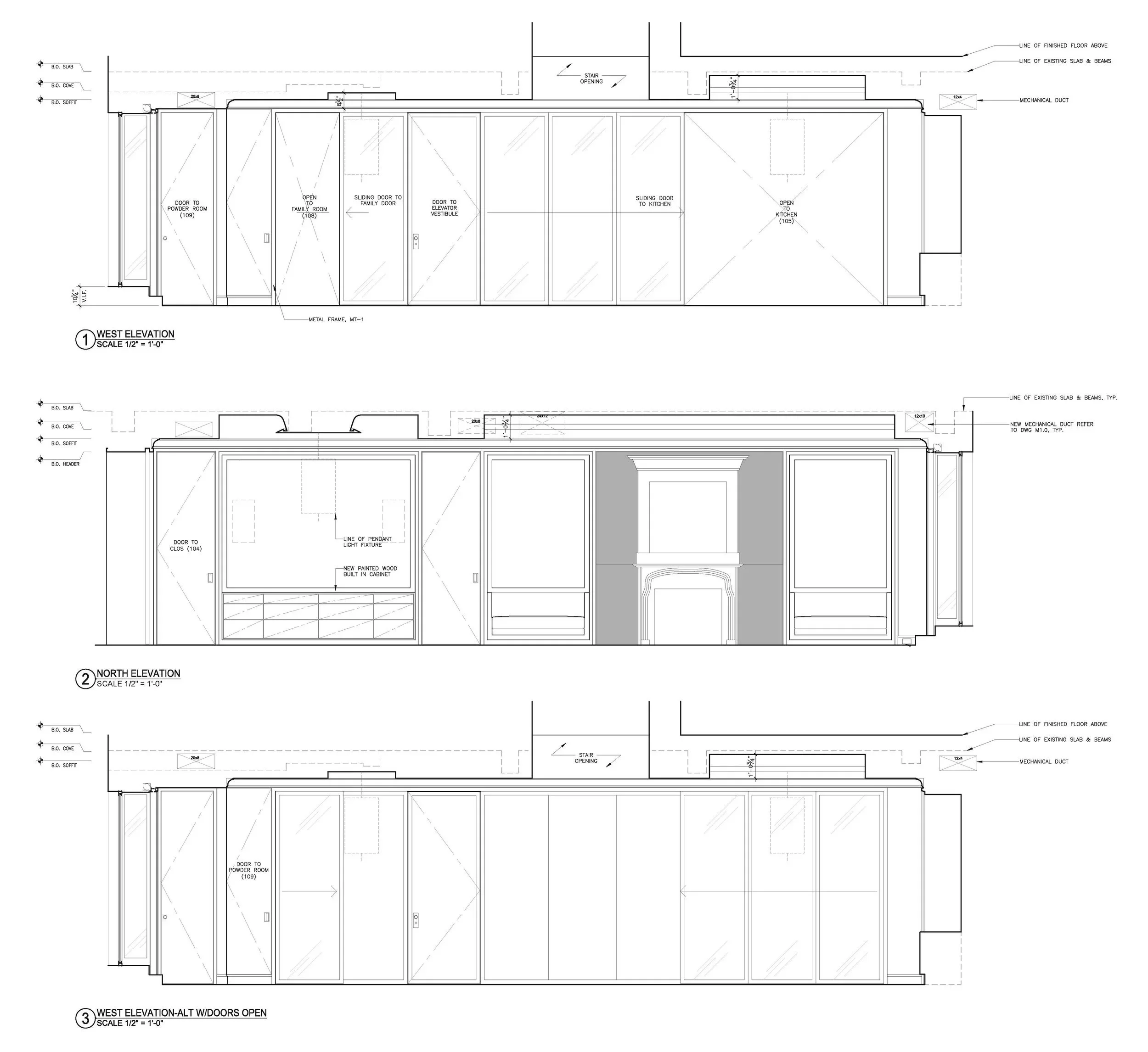
Living Room Elevations
Stair Details
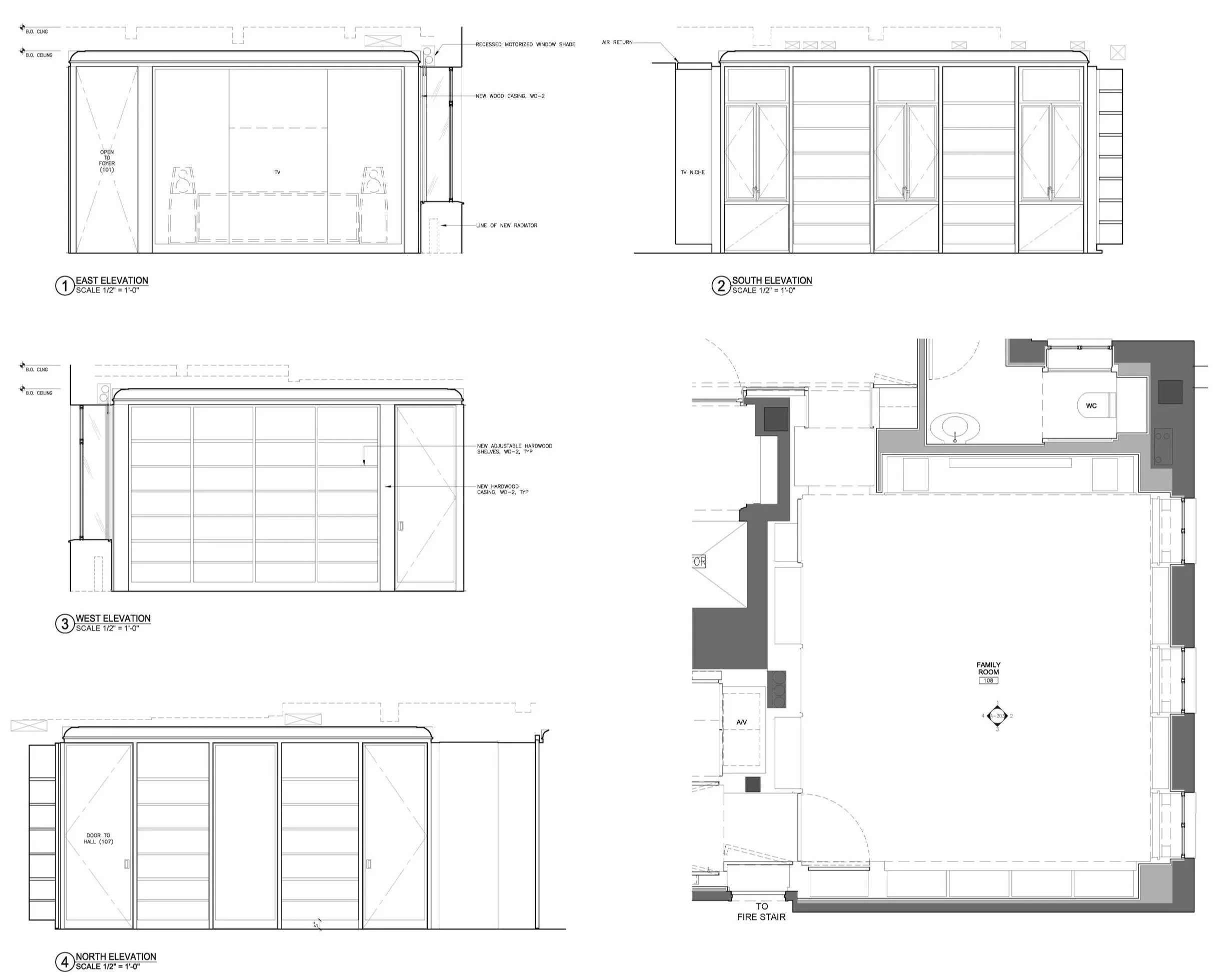
Family Room Plan and Elevations
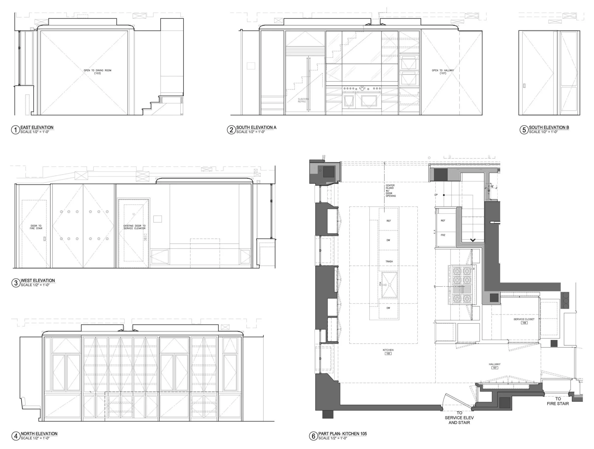
Kitchen Plan and Elevations
Masterbath Plan and Elevations