0
Skip to Content
Home
About
Projects
Residential
Retail
Hospitality
Contact
Jina Son Studio
Open Menu
Close Menu
Home
About
Projects
Residential
Retail
Hospitality
Contact
Jina Son Studio
Open Menu
Close Menu
Home
About
Folder:
Projects
Back
Residential
Retail
Hospitality
Contact
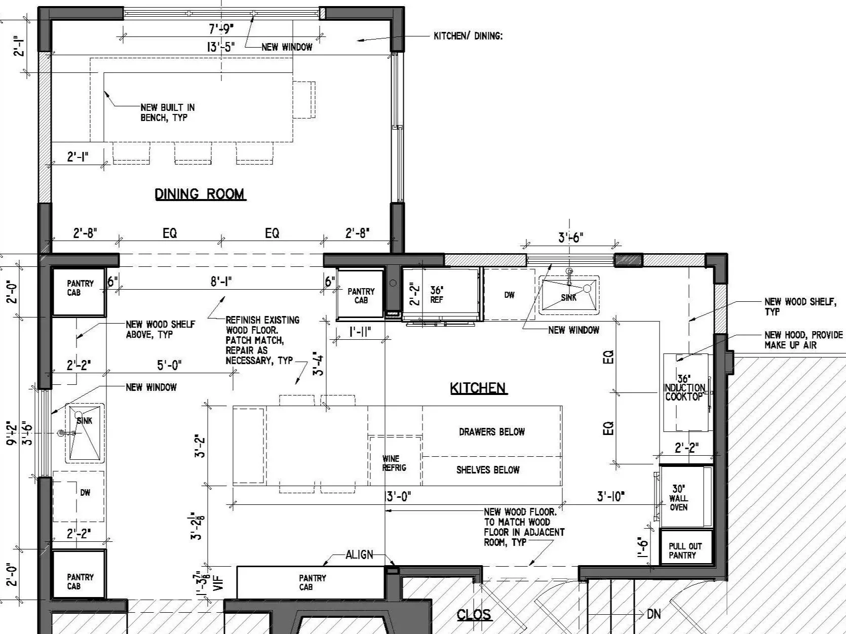
Gold Kitchen
UNDER
CONSTRUCTION
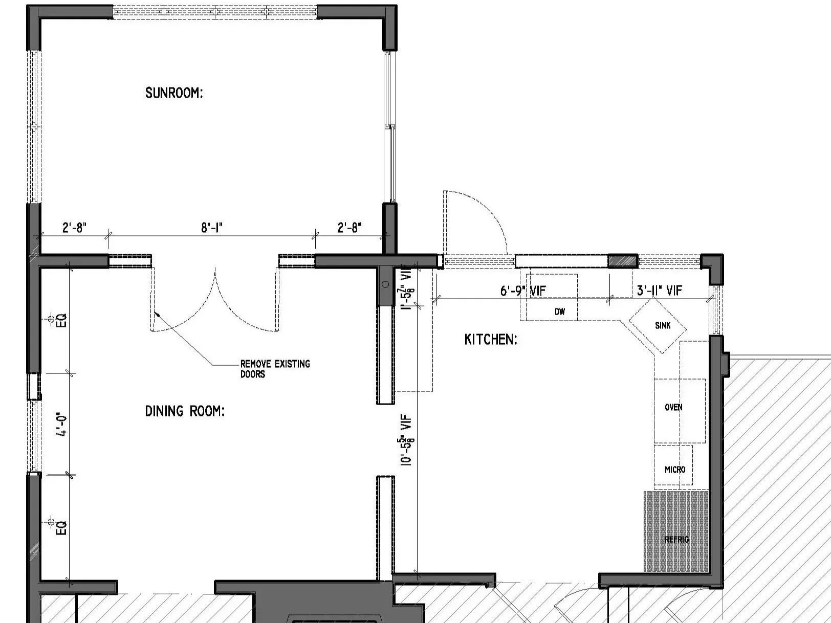
Demo Plan
Proposed Plan
Previous
Previous
Johnson- Oldham Kitchen
Next
Next
Ackman Residence