Oldham/Johnson Residence
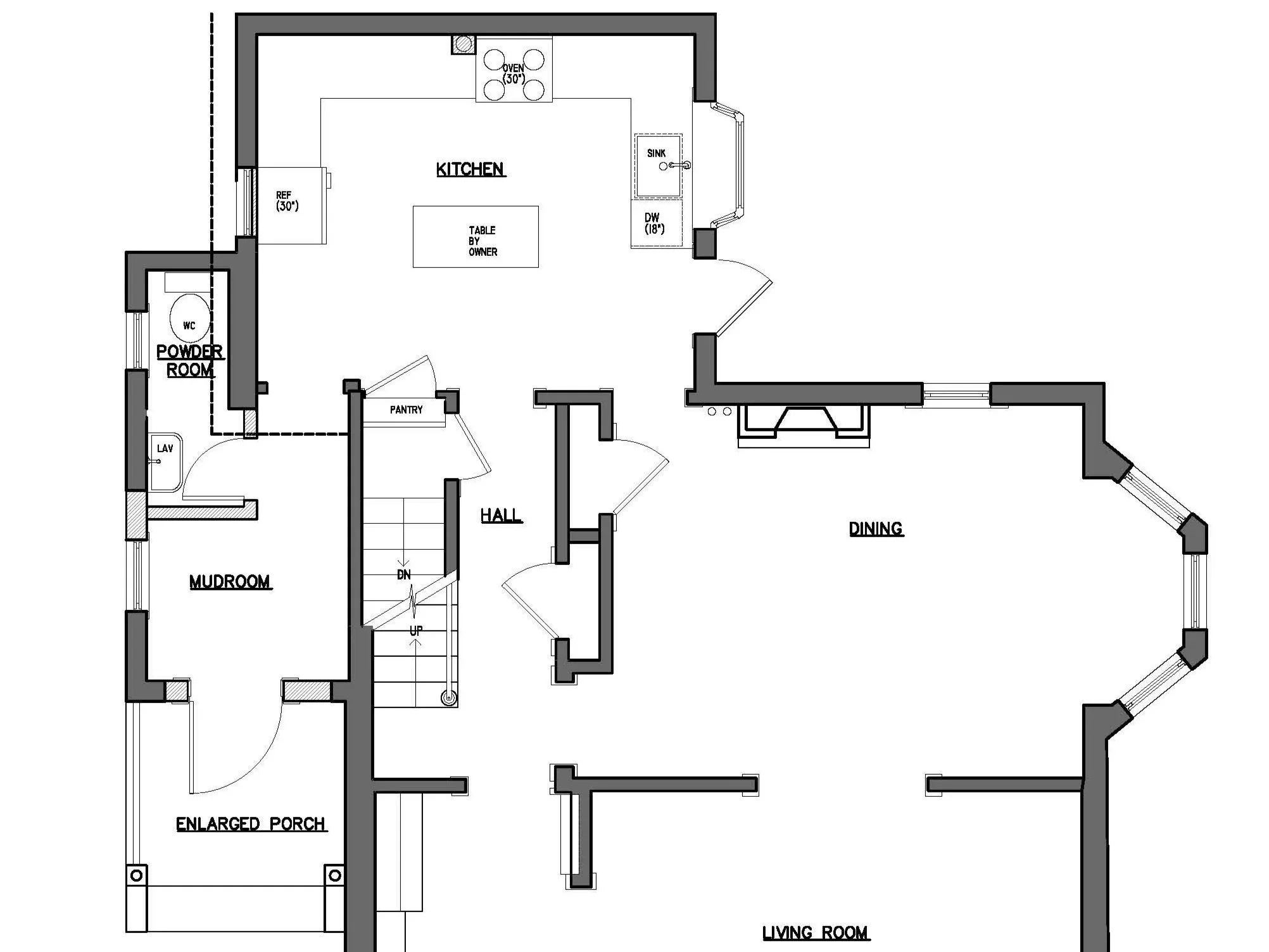
Kitchen Plan
Kitchen Elevations
Masterbath/ Clos Plan
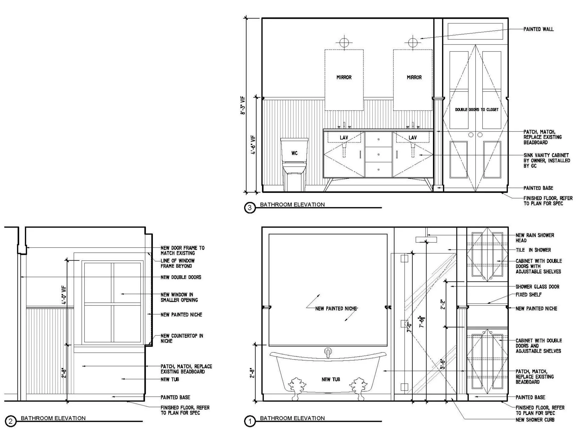
Masterbath elevations
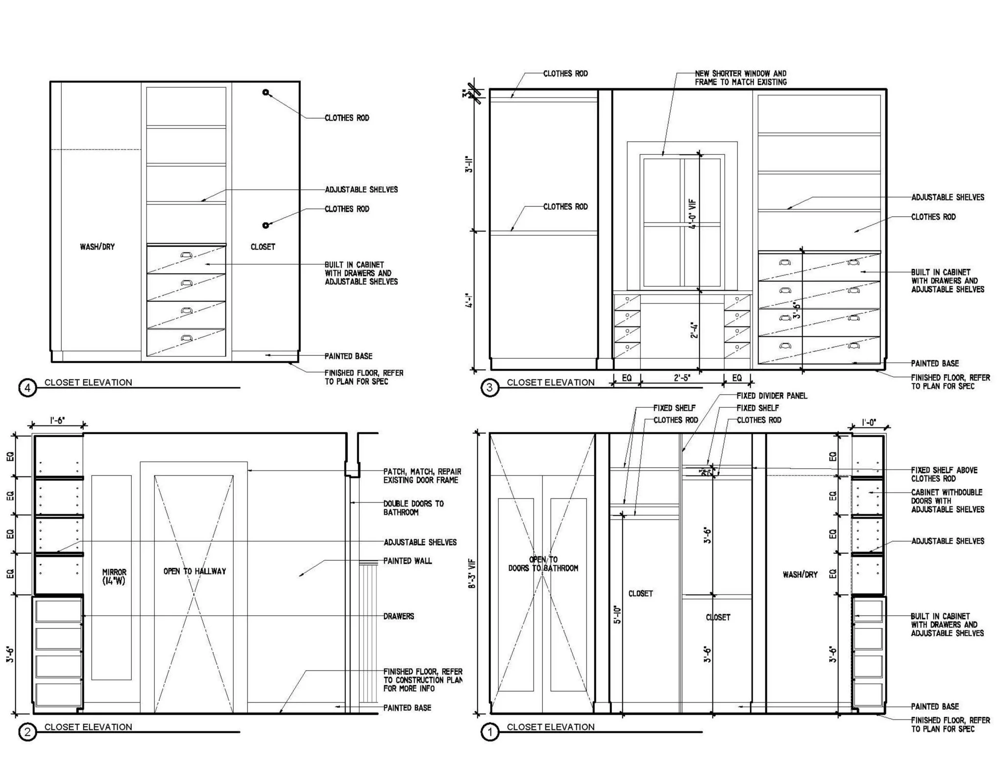
Closet elevations